返回首页 >> 手动阀门 >> 锻钢阀门 >> Z41Y锻钢法兰闸阀

客户询价单直接传真至021-3126 3297,或者发送至企业邮箱,也可直接来电咨询。
	  
	    
具体商定:交货期、是否含税、保质期、付款方式及特殊要求等事宜。
	    
客户提供:工作压力、温度、介质、连接方式、驱动方式等细节参数。
	    
其他特殊要求须在询价单中说明。另公司可根据客户特殊要求配置各类驱动装置。
质量方针:以科技为动力 以质量求生存
		  	    
销售电话:021-3126 3267(总机) 
		  	    
企业邮箱:sales@geroyal.com
	  	        
企业网址:http://www.shjovalve.com

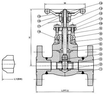
Z41Y锻钢法兰闸阀有三种阀盖设计形式。第一种是螺栓式阀盖,按这种设计的阀门,其阀体与阀盖用螺栓螺母连接,缠绕式垫片(316夹柔性石墨制造)。客户有特殊要求时也可采用金属环连接。第二种设计形式是焊接式阀盖,按这种设计形式的锻钢法兰闸阀,其阀体与阀盖用螺纹连接,全焊密封。客户有特殊要求时也可采用合焊透连接。第三种是压力自紧式阀盖,按这种设计形式设计的锻钢法兰闸阀,其阀体与阀盖用螺纹连接,内压自密封环密封.法兰端阀适应于闸阀、截止阀、升降式止回阀和旋启式止回阀及球阀。
| 序号 | 零件名称 | CS to ASTM | AS to ASTM | SS to ASTM | |
|---|---|---|---|---|---|
| Type A105 | Type F22 | Type F304(L) | Type F316(L) | ||
| 1 | 阀体 | A105 | A182 F22 | A182 F304(L) | A182 F316(L) | 
| 2 | 阀座 | A276 420 | A276 304 | A276 304(L) | A276 316(L) | 
| 3 | 闸板 | A276 410 & 430 | A182 F304 | A182 F304(L) | A182 F316(L) | 
| 4 | 阀杆 | A182 F6 | A182 F304 | A182 F304(L) | A182 F316(L) | 
| 5 | 垫片 | 316夹柔性石墨 | 316夹PTFE | ||
| 6 | 阀盖 | A105 | A182 F22 | A182 F304(L) | A182 F316(l) | 
| 7 | 螺栓 | A193 B7 | A193 B16 | A193 B8 | A193 B8M | 
| 8 | 销钉 | A276 420 | A276 304 | ||
| 9 | 填料压套 | A276 410 | A182 F304(L) | A182 F316(L) | |
| 10 | 活节螺栓 | A193 B7 | A193 B16 | A193 B8 | A193 B8M | 
| 11 | 填料压板 | A105 | A182 F11 | A182 F304(L) | A182 F316(L) | 
| 12 | 螺母 | A194 2H | A194 4 | A194 8 | A194 8M | 
| 13 | 阀杆螺母 | A276 410 | |||
| 14 | 锁紧螺母 | A194 2H | A194 4 | A194 8 | A194 8M | 
| 15 | 铭牌 | SS | |||
| 16 | 手轮 | A197 | |||
| 17 | 润滑垫片 | A473 431 | |||
| 18 | 填料 | Flexible Graphite | PTFE | ||
| 适用介质 | 水、蒸汽、油品等 | 水、蒸汽、油品等 | 硝酸、醋酸等 | ||
| 适用温度 | -29℃~425℃ | -29℃~550℃ | -29℃~180℃ | ||
![]()  | 
    
|---|
| Z41Y锻钢法兰闸阀 (尺寸图) | 
| NPS | 1/2" | 3/4" | 1" | 1 1/2" | 1 1/4" | 2" | |
|---|---|---|---|---|---|---|---|
| L(RTJ) | 900Lb~1500Lb | 216 | 229 | 254 | 279 | 305 | 371 | 
| L1(BW) | 900Lb~1500Lb | 216 | 229 | 254 | 279 | 305 | 368 | 
| H(开) | 197 | 197 | 236 | 246 | 283 | 330 | |
| W | 125 | 125 | 160 | 160 | 180 | 200 | |
| 重量 | RTJ | 7.2 | 11.5 | 15.6 | 16.2 | 22.6 | 32.8 | 
| BW | 5.2 | 9.3 | 12.4 | 13.8 | 18.9 | 27.5 | |
订货时请填写《规格书》或注明以下内容:
1、若订货前未选定型号,请向我们提供使用参数:1.公称通径,2.流体性质(包括公称压力、温度、粘度或酸碱性),3.阀体、阀芯材料。
2、若已经由设计单位选定我公司的产品型号,请按型号直接向我司生产部订购;
3、当使用的场合非常重要或管路比较复杂时,请您尽量提供设计图纸和详细参数,由我们的专家为您审核把关。